【仲介手数料30%OFF】 シティフロントタワーのご紹介が可能です。【仲介手数料30%OFF】 シティフロントタワーの情報ならクレッシェンドまでお問い合わせください。

  • Propertise 物件情報
  • Campaign news キャンペーン情報
  • Sale consultation 売却のご相談
  • Renovation リノベーション事業
  • Crescend club クレッシェンド倶楽部
  • Company 会社案内

Propertise 物件情報

HOMEPropertise 物件情報_一覧>Propertise 物件情報_詳細
キャンペーン物件
シティフロントタワー 2504号室 21,490万円 
     【平日・夜間のご見学も可能でございます。お気軽にご連絡くださいませ】
所在地 東京都中央区佃1-11-9
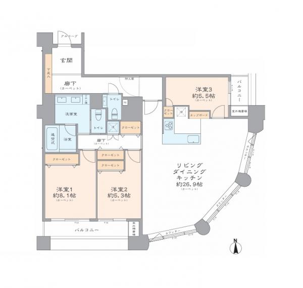
価  格 21,490万円 間取り 3LDK 築年数 平成3年8月
専有面積 113.38 バルコニー面積 7.58
おすすめPOINT
■周囲を緑地公園に包まれた、水辺に佇む総戸数290戸のタワーマンション
・「リバーシティ21」エリアの一画、東京駅から約2km圏内
■三井不動産株式会社旧分譲
・東京メトロ有楽町線、都営大江戸線「月島」駅徒歩6分
■充実の生活利便施設(隣接する商業施設・ピアウエスト内)
・レストラン   ・ヘアサロン   ・喫茶店   ・銀行ATM   ・会員制スポーツ 
・クリーニング   ・スーパーマーケット(リンコスリバーシティ店)
■25階部分、南東向き、角部屋、眺望、採光、通風良好
■新規内装リノベーション済
■安心のアフターサービス保証付
■ペット飼育可能(飼育細則有)   ■24時間常駐管理、管理体制良好
【仲介手数料30%OFF】 シティフロントタワー
【仲介手数料30%OFF】 シティフロントタワー
【仲介手数料30%OFF】 シティフロントタワー
【仲介手数料30%OFF】 シティフロントタワー
【仲介手数料30%OFF】 シティフロントタワー
【仲介手数料30%OFF】 シティフロントタワー
※写真をクリックすると拡大表示します。
※図面と現況が相違する場合は現況を優先させていただきます。また、先着順のため、売約済の際はご容赦ください。
■名称/シティフロントタワー 2504号室

■所在地/東京都中央区佃1-11-9

■交通/東京メトロ有楽町線、都営大江戸線「月島」駅徒歩6分

■土地権利/所有権

■構造・規模/鉄骨鉄筋コンクリート造 地下2階付 地上31階建 25階部分

■施工会社/株式会社大林組、清水建設他

■総戸数/290戸
■管理会社/三井不動産レジデンシャルサービス株式会社   ■管理形態/全部委託管理(日勤)

■管理費/月額49,020円      ■修繕積立金/月額30,520円
■給湯暖房基本料/月額1,960円     

■現況/空室     ■入居時期/即入居可     ■取引形態/媒介


*「シティフロントタワー」に関するご売却のご相談もお気軽にご連絡ください。
当物件についてのご質問・ご見学希望の方は03-5614-6642までお気軽にご連絡ください。
List back
Page up
お問合わせフォーム お問合わせフォーム 空室確認・資料請求・内見予約 メールでのお問合わせはこちら