【仲介手数料50%OFF】THE TOKYO TOWERS MID TOWERのご紹介が可能です。【仲介手数料50%OFF】THE TOKYO TOWERS MID TOWERの情報ならクレッシェンドまでお問い合わせください。

  • Propertise 物件情報
  • Campaign news キャンペーン情報
  • Sale consultation 売却のご相談
  • Renovation リノベーション事業
  • Crescend club クレッシェンド倶楽部
  • Company 会社案内

Propertise 物件情報

HOMEPropertise 物件情報_一覧>Propertise 物件情報_詳細
シングル&DINKS向け
THE TOKYO TOWERS MID TOWER 3511号室 19,990万円
     【平日・夜間のご見学も可能でございます。お気軽にご連絡くださいませ】
所在地 東京都中央区勝どき6-3-2
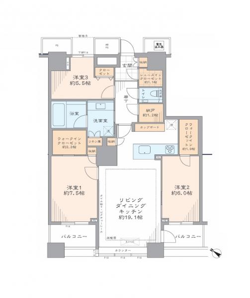
価  格 19,990万円 間取り 3LDK+2Wic+Sic 築年数 平成20年1月
専有面積 93.82 バルコニー面積 7.56
おすすめPOINT
■総戸数1,333戸のビッグコミュニティ   ■都営大江戸線「勝どき」駅徒歩5分
■充実の共用施設
・フロントコンシェルジュサービス・プライベートラウンジ・リラクゼーションルーム
・プレイコーナー・スタディコーナー・カルチャーホール・スカイラウンジ・スカイゲスト
・シーサイドアネックス(居住者専用スポーツ施設)
・25m屋内プール、ジャグジー、サウナ、フィットネスジム、ゴルフレンジ etc...
■35階部分、南西向き、眺望、採光、通風良好 
■新規内装リノベーション済   ■安心のアフターサービス保証付
■ペット飼育可能(飼育細則有)   ■24時間有人管理、管理体制良好
【仲介手数料50%OFF】THE TOKYO TOWERS MID TOWER
【仲介手数料50%OFF】THE TOKYO TOWERS MID TOWER
【仲介手数料50%OFF】THE TOKYO TOWERS MID TOWER
【仲介手数料50%OFF】THE TOKYO TOWERS MID TOWER
【仲介手数料50%OFF】THE TOKYO TOWERS MID TOWER
【仲介手数料50%OFF】THE TOKYO TOWERS MID TOWER
※写真をクリックすると拡大表示します。
※図面と現況が相違する場合は現況を優先させていただきます。また、先着順のため、売約済の際はご容赦ください。
■名称/THE TOKYO TOWERS MID TOWER 3511号室

■所在地/東京都中央区勝どき6-3-1

■交通/都営大江戸線「勝どき」駅徒歩5分

■土地権利/所有権

■構造・規模/鉄筋コンクリート造 地下2階付 地上58階建 35階部分

■施工会社/前田建設株式会社・大成建設株式会社共同企業体

■総戸数/1,333戸
■管理会社/住商建物株式会社     ■管理形態/全部委託管理(24時間有人管理)

■管理費/月額19230円   ■修繕積立金/月額17,090円   ■インターネット使用料/月額990円

■現況/空室     ■入居時期/即入居可     ■取引形態/媒介


*「THE TOKYO TOWERS MID TOWER」に関するご売却のご相談もお気軽にご連絡ください。
当物件についてのご質問・ご見学希望の方は03-5614-6642までお気軽にご連絡ください。
List back
Page up
お問合わせフォーム お問合わせフォーム 空室確認・資料請求・内見予約 メールでのお問合わせはこちら